Search
Most searched
Back

NSCR-HD-II-HC-250-CNC/UPB

NSCR-HD-II-HC-250-CNC/UPB

New Standard Premium Crowning
  • Clamping Type = Hydraulic
  • Adaption = UPB-VII
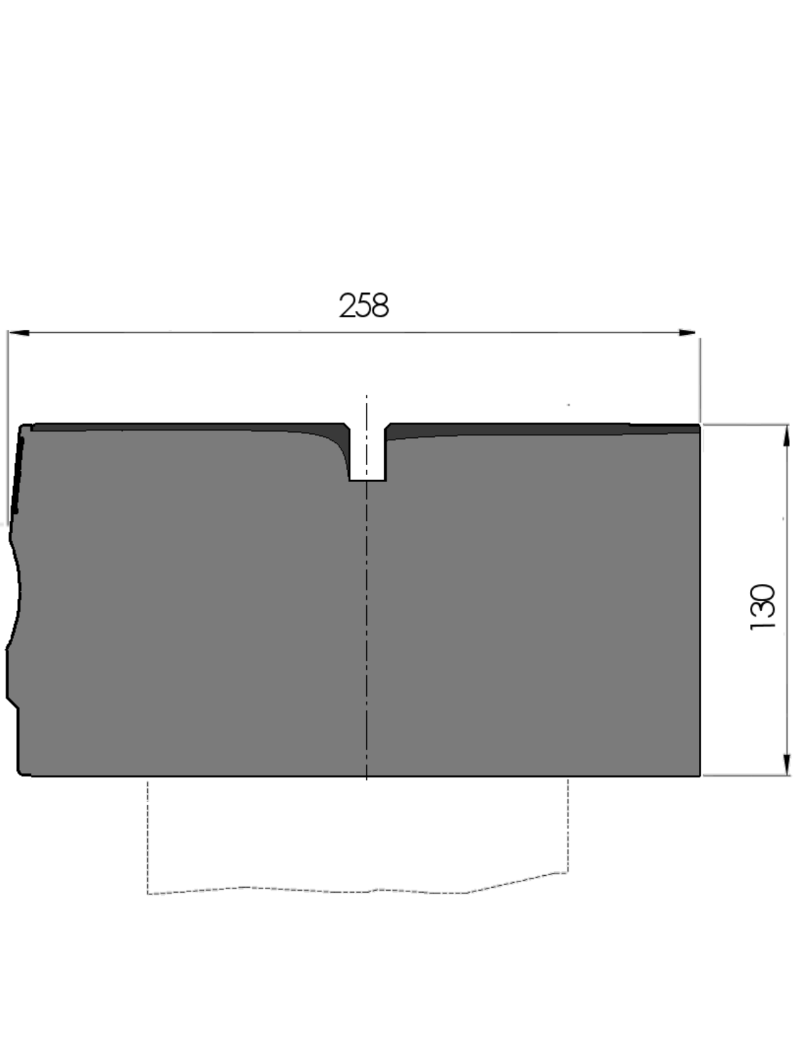
  • Working height H = 130mm
  • Width W = 250mm
  • Max. load = 800ton/m

Description

New Standard Premium CrowningUPB-VII, ,
Working height=130mm, Width=250mm, provided with UPB-hole pattern which is suitable for the fixing holes according to drawing no.: 0305545, hydraulic clamping (max. 50bar), oil supply ø10mm, left-rear.
Crowning: CRM30 motorized (400V, 50Hz, 3Ph) at the right hand side, Tx-alignment, Material=CR-MO, pressure and reference surfaces CNC-Deephardened® (2-4mm / 56-60HRc), weight: 258kg/m, max.load: 800ton/m.Delivery with coverstrip, hardenend guards and scale (front side, metric, "0" at the left).
Delivery without hydraulic power pack.

Downloads

Thank you for your interest!

Please leave your email address and we'll send you a download link straight away. Or register for MyWILA and get immediate access to all WILA online content.

Guest download Sign in
Already have an account? Sign in